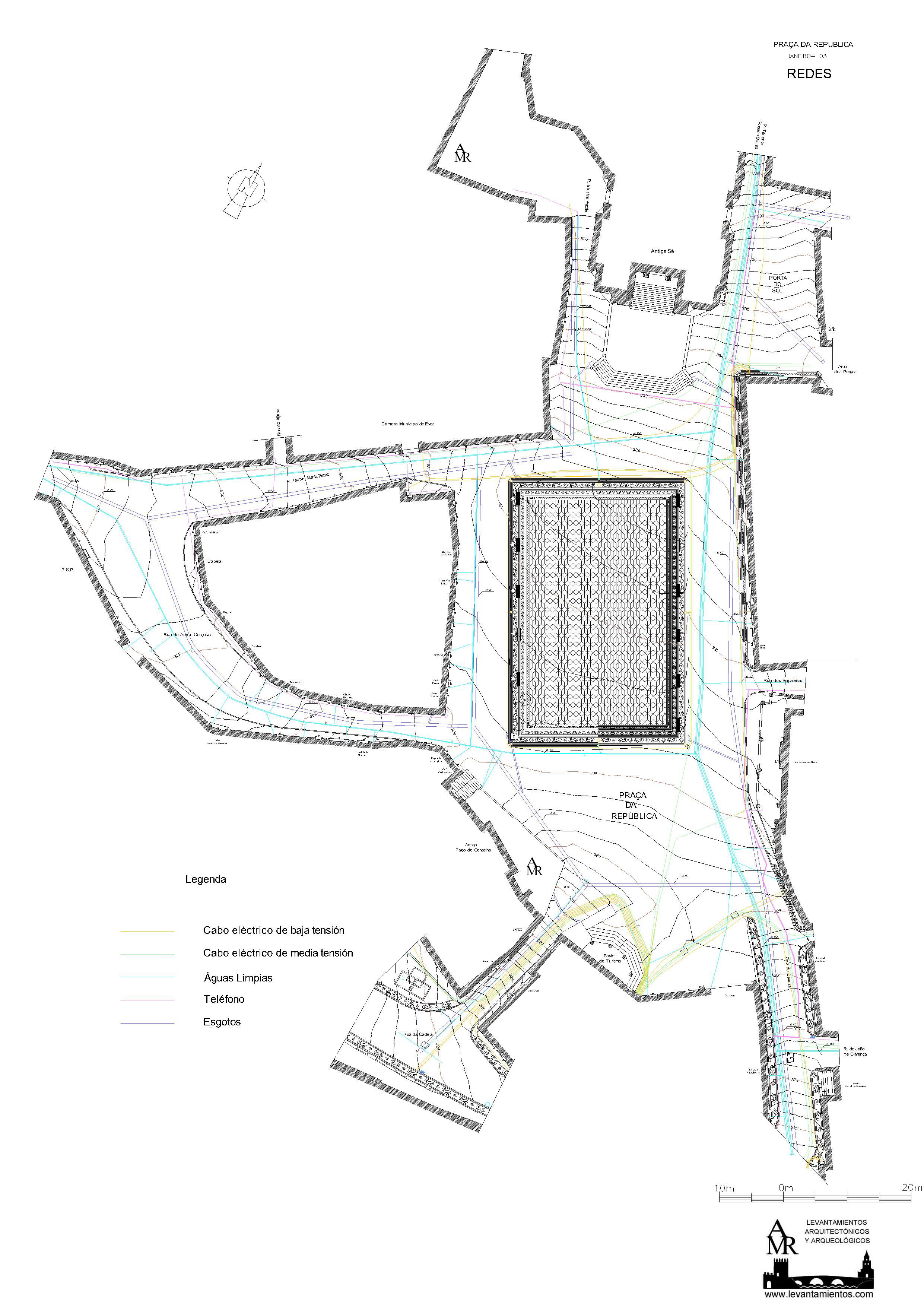
Plaza de la República. Elvas.
Levantamiento enero 2003.
Levantamiento topográfico con curvas de nivel y localización de redes de saneamiento, luz, agua y teléfono.