Warning: Undefined array key 1 in /srv/vhost/levantamientos.com/home/html/proyecto.php on line 121

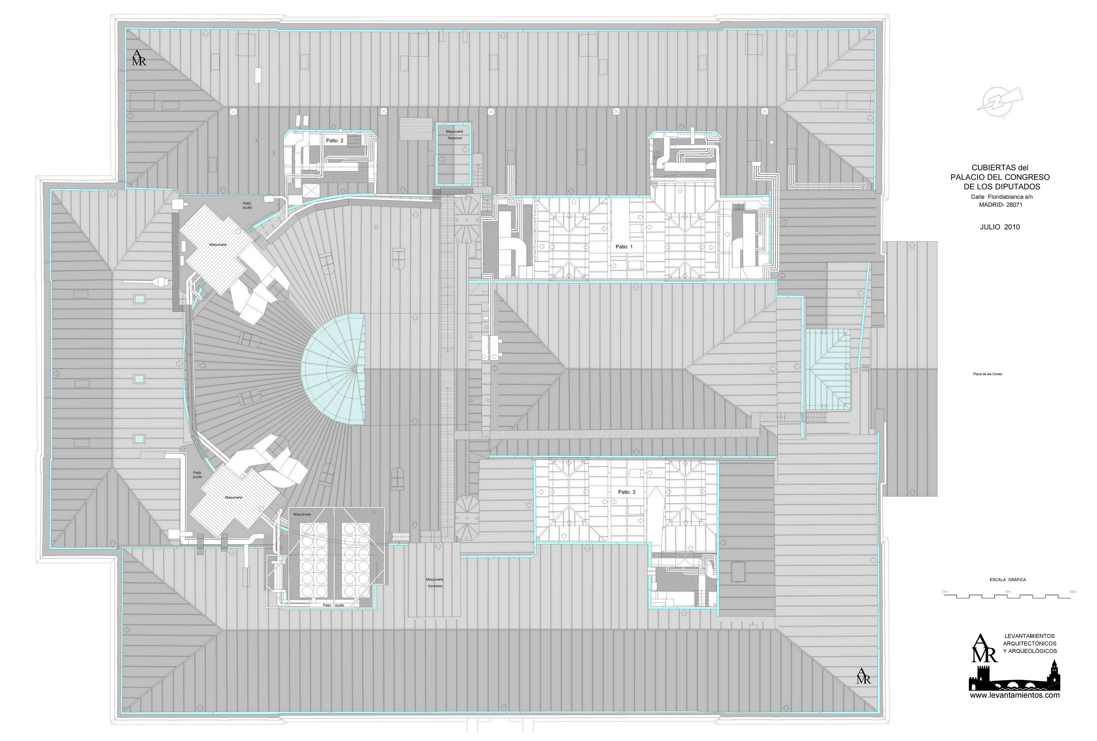
Cubiertas Congreso de los Diputados. Madrid.

Levantamiento de las cubiertas del Palacio del Congreso de los Diputados en Madrid. Julio 2010.